大华梧桐樾(售楼处电话)2025售楼处楼盘网站| 大华梧桐樾-户型-价格-配套-位置
扫描到手机,新闻随时看
扫一扫,用手机看文章
更加方便分享给朋友
大华梧桐樾_售楼处电话:400-000-0460转4444【营销中心】
➤➤〢温馨提示:本电话为开发商提供线上售楼电话,仅限服务购房相关咨询及预约
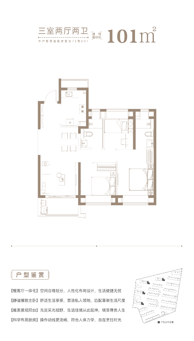
楼盘介绍,在售户型、小区图片、区位优势、交通、周边商业配套、户型图等楼盘详情!
随着虹桥北向战略规划的深入推进,上海嘉定大华梧桐樾以其独特的地理位置和高端定位,成为置业高地中的璀璨新星。
项目地处虹桥北向拓展带,嘉定占位虹桥国际开放枢纽的核心区域,定位为上海大都市圈的现代化新型城市,拥享商务区发展辐射利好,全面承接大交通、大商务、大会展等溢出效应。
虹桥北向,作为“2035战略规划”明确的主城片区,嘉定区以其得天独厚的地理优势,成为置业者眼中的香饽饽。
大华梧桐樾位于虹桥北上海国际汽车城核心区,占位板块内难得一见的大规模开发地块,坐拥不可多得的城市别墅集群。
在这里,业主们可以享受到商务区的繁华与便利,同时又拥有静谧宜居的生活环境。
大华梧桐樾所处的上海国际汽车城产城融合示范区,以产赋能,将带动整个板块的能级提升、经济提升及人口结构优化。
这里将成为高精尖人才炙手可热的置业新高地。同时,禁墅令下,别墅在市场上少之又少,而高尔夫用地不再批复之后,果岭别墅更是罕见。
大华梧桐樾旁边就是上海第二大高尔夫球场——约1800亩的颖奕高尔夫球场,生态之美浑然天成。
大华梧桐樾占据天赋贵族基因的上海第二大果岭绿肺,周边人居高度难企及,生态氛围更纯粹,距离主城更近,区位土地价值不言而喻,未来更具竞争力。
项目周边配套设施齐全,1km范围内坐拥东方瑞仕幼儿园、9年一贯制同济大学附属嘉定实验学校;3km范围内,安亭小学、安亭中学、华师大双语学校、同济大学(嘉定校区)覆盖。12年一站式的优渥教育,为孩子们提供了良好的成长环境。
项目坐拥多维立体交通,快速通达全城。11/14号(规划)/嘉虹3号线(规划)轨交加持,一线直达市区核心;G2京沪高速、沪嘉高速、沈海高速、G312至嘉闵高架、外环、中环等纵横交错路网,瞬息全城无界生活。
大华集团,作为中国最早起步、最大规模的城市更新运营商之一,34年稳健发展,于近30多个城市,为约70万业主构建美好生活。大华梧桐樾,作为大华集团匠心雕琢的超30城精粹墅区经典,被业内称为“城市别墅专家”。
1.约300-400万价格段,距离虹桥主城更近的项目,约20分钟到虹桥商务区,也是距离市区更近的超值三房。
2.直线距离约300米,即至同济附小附中,嘉定头排名校,百年同济血统。
3.既拥享约1800亩高尔夫绿境,又毗邻约1200亩汽车博览公园城市绿肺,全上海只此一个。
4.全市在售别墅不超过12个,板块内在售别墅项目仅此1个,后期别墅用地再难获批,别墅愈发臻稀。
5.约七成业主属于高净值人群,圈层高端纯粹,有更好的居住氛围和教育环境。
6.自古宅邸,得水为上,项目玉带缠腰,三面环水,是景观卓越、风水上佳的人居福地。






声明:本文由入驻焦点开放平台的作者撰写,除焦点官方账号外,观点仅代表作者本人,不代表焦点立场。
