苏州敏华聚珑阁→最新楼盘评测→特价房源限时呈现→敏华聚珑阁售楼处接待中心→售楼处电话认证→最新动态全掌握→年中超值钜惠房源→百度问一问
扫描到手机,新闻随时看
扫一扫,用手机看文章
更加方便分享给朋友
苏州敏华聚珑阁『敏华聚珑阁公寓』项目笔记_敏华聚珑阁售楼处电话_2025敏华聚珑阁最新价格_敏华聚珑阁户型图_怎么样?楼盘优缺点分析?
苏州敏华聚珑阁公寓
苏州敏华聚珑阁售楼处电话☎:400-000-5503转2555【售楼处已认证】
苏州敏华聚珑阁营销中心电话☎:400-000-5503转2555【营销中心已认证】
敏华聚珑阁公寓开发商售楼电话☎:400-000-5503转2555【开发商已认证】
温馨提示:网上售楼中心〢预约尊享Vip一对一专业置业顾问讲解!
_Vip营销中心_____欢迎来电预约尊享内部折扣_____匠心钜制恭迎品鉴!中介勿扰!
预约来电尊享内部优惠,开发商案场销售一对一热情服务,提前24小时预约,看房不收取任何费用!
Sales Office reservation center: 400-000-5503转2555 Make an appointment to enjoy the internal benefits, the developer's case sales one-to-one warm service, do not charge any fees to see the house!
苏州敏华聚珑阁公寓
【聚珑阁 城市CEO公馆 执掌希尔顿】
(项目鸟瞰图)

建筑面积:22万㎡
容积率:5.37
绿化率:32
产权年限:40年
开发商:敏华家具总部(吴江)有限公司
物业公司:苏州聚珑阁物业管理有限公司
【运东大发展 板块的高光时刻】
【长三角黄金腹地 时代发展机遇】
吴江区作为长三角一体化的重要组成部分,与上海实现无缝对接。
项目占据运东优质资源,紧临吴江经济开发区行政中心。作为苏浙沪三地的交汇处,聚珑阁立足长三角腹地,占据着极大的经济优势。

目前园区土地发展已近饱和,且价格已达4-8万,随着吴江三大战略发展带,园区南将影响人口迁移形成未来城市副中心,衔接园区,未来价值提升空间非常明晰。
【东环南延二期+江陵快速路,城市交通大动脉】
板块正处于“新内环“黄金走廊上的黄金位置,东环南延的贯通,实现了快速与园区的接驳;江陵西路高架(在建),西侧通过松陵大桥与西环南延、苏州湾大桥相连,快速打通运东与苏州湾、新区、姑苏区的交通壁垒,无缝对接苏州各大区域。

【配套升级 助力区域腾飞】
1.希尔顿酒店位于本案地块内,作为本案配套之一。
(希尔顿逸林酒店实景图)

2.运东最高端商业综合体:吴江ZF重点打造的22万方大型商圈—天空之城。
(天空之城效果图)

3.教育资源配套
贵族学校-宋庆龄幼儿园择址于此,这是继苏州园区湖东之后的第二所,投资8000万打造。上海的小区有很多明星宝宝在那里就读过,比如陆毅的女儿贝儿、马伊俐的女儿爱马,马景涛的儿子等。
教育一站式-北大新世纪外国语学校:涵盖幼儿园到高中一站式教学,将建成幼儿园6轨、小学8轨、初中8轨、高中8轨,总投资6.5亿。

(北大新世纪外国语学校效果图)
4.优质景观资源配套-家门口的生态场
出门即达约543亩的运河文化公园,吴江第一大公园,全长6公里,城市绿肺。
(运河文化公园实景图)
【大牌房企争相入驻-超高人气聚集】
旭辉、绿地香港、佳兆业、新希望、中交、万科、联发、金地、中建等10余家超大牌房企竞相入驻。未来新房大批量交付,同时在产业和学校的带动下,保守估计会有6-8万人口导入。板块正在蓬勃发展!

【苏州罕见社区感Loft】
全玻璃幕墙外立面,现代简约
100米樱花大道,十字景观轴,花坛广场、景观喷泉、凉亭;社区内部实行人车分流,双层地下车库,严格的物业管理。

【现房交付】
即买即住即收益,美好生活即时兑现!
相较于期房,现房销售更加有保障。于自住不必再租房,可以立刻入驻,等期房1-2年要多花费3-6w房租;于投资可以立刻出租,投资回报看得到。

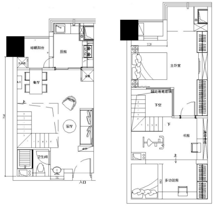
【户型介绍】
(项目平面图)

73m2产品:3+2房2厅2卫;东边户,每层仅2户。



50m2产品(南北向,每层12户):2房+2厅+1卫+功能房;




苏州敏华聚珑阁公寓
苏州敏华聚珑阁售楼处电话☎:400-000-5503转2555【售楼处已认证】
苏州敏华聚珑阁营销中心电话☎:400-000-5503转2555【营销中心已认证】
敏华聚珑阁公寓开发商售楼电话☎:400-000-5503转2555【开发商已认证】
预约来电尊享内部优惠,开发商案场销售一对一热情服务,提前24小时预约,看房不收取任何费用!
Sales Office reservation center: 400-000-5503转2555 Make an appointment to enjoy the internal benefits, the developer's case sales one-to-one warm service, do not charge any fees to see the house!
声明:本文由入驻焦点开放平台的作者撰写,除焦点官方账号外,观点仅代表作者本人,不代表焦点立场。
