2025上海保利·西郊和煦-(上海保利·西郊和煦售楼处)2025上海保利·西郊和煦楼盘详情-上海保利·西郊和煦最新房价-首页网站-上海保利·西郊和煦户型配套
扫描到手机,新闻随时看
扫一扫,用手机看文章
更加方便分享给朋友
上海保利·西郊和煦
售楼处预约中心电话:400-000-0460转6999【天眼查认证】
预约来电尊享内部优惠,开发商案场销售一对一热情服务,提前24小时预约,看房不收取任何费用!
Sales Office reservation center: 400-000-0460转6999 Make an appointment to enjoy the internal benefits, the developer's case sales one-to-one warm service, do not charge any fees to see the house!
ıllı保利·西郊和煦丨领墅 ıllı
「叠」代西郊 如「院」以藏
12号线旁|约1.01容积率|城市轨交墅区
保利发展深耕上海20余载,奉行长期主义,助力城市焕新;共计开发 60 余个项目,覆盖 11 个区域,累计服务 15 万+业主。
2025保利发展,以责任为笔,践行央企责任担当。保利·西郊和煦|领墅,顺势迭代“好房子”的外在肌理与内在基因,以“三好十五力”标准,专注回应一个时代的居住向往。
G60云廊超级产城 擎领长三角科创桥头堡
占位世界级科创走廊商务封面,“一廊九区”超千亿GDP聚合地,串联超级产业中心城市的发展脉络。
12号线旁轨交墅区 3大TOD强势赋能
🚇12号线旁,一脉徐汇、3站闵行、5站莘庄/七宝
🏬生态科技城TOD约11万方云廊龙湖天街、洞泾未来湾TOD(规划)、刘五公路TOD(规划),3大TOD聚势联动,聚合一站式广袤业态商业体量
🏫华二附中松江实验学校(在建)、松江区洞泾学校、洞泾外国语实验学校、洞泾镇中心幼儿园(教育设施相关最新信息及情况,须以政府相关主管部门,教育机构公开最新信息为准)
🏥上海交通大学附属第一人民医院松江分院(三甲)、上海中医药大学附属曙光医院、洞泾社区卫生服务中心
十年一遇 约1.01超低容积率
➡️约60%墅居界面,境显低密纯粹质感,为海派生活重构“由住到享”的迭代价值
➡️引入L型自然河道,双水岸环绕,串联双口袋公园,一步亲近自然
➡️1:1间距比搭配约13.5m开阔楼间距,为西郊焕新臻贵低密墅居样本
时代重塑 经典红砖学院风格
➡️海派滨水会客厅入口,融合奢石、红砖、叠水等布景元素,匠艺锻造中轴门庭对称礼序,演绎古典学院风严谨与优雅并存的高颜美学主义
➡️海派滨水会客厅连廊,借鉴经典学府的优雅气质,以对称且韵律感十足的拱券设计,巧妙构建庄重而尊贵的学术气息
➡️海派滨水会客厅立面红砖采用分色独立包装,对红砖进行定制化加工,严格遵循红砖排版图与分色图
双轴串引 十园五巷全维景观体系
➡️双轴:以社区主入口引入礼仪归家轴,用脚步丈量谧境之道;约1km滨水休闲轴,全龄步道墅映亲水沿岸
➡️十园:巧设叶间弄茶、泡泡派对、颐养游园等宅间会客厅,融合睦邻、亲子、漫步等乐活聚场空间
➡️五巷:鱼骨巷道,平行有序,融汇春棠、夏青、秋枫、冬影主题巷道,洄游四季分明的宅间风光
浸享艺墅生活聚场 超1100m²煦·CLUB美学会客厅
➡️「室内篮球场」专业级枫木地板搭配超7米室内层高,为全龄乐活群体,围合出了一方在家楼下就能“拿球说话”的竞技场
➡️「光幕健身房」配置法国MONAMI®麦纳力全系赛级健身器械,还设有瑜伽区、普拉提训练区,满足男女业主需求。搭配全景落地玻璃窗,让运动的同时悦享阳光与自然的完美调和
➡️「睦邻棋牌室」+「茶道会馆」棋牌功能区可供全龄段业主浸享桌游、卡牌、麻将的乐趣;禅茶一体的雅叙空间可作为日常志趣社交的私密天地
➡️「圈层私宴厅」+「女王茶室」两处栖心聚场境显摩登腔调,整块香格里拉绿奢石壁炉、白水晶奢石酒架、全景开放式落地窗……每一处细节的精研,都在彰显飨宴、雅集的品位
越级改善 全龄浸享高阶改善级门牌
建筑面积约122m²墅境洋房
•3+1飞机户型,典藏功能性与尺度感的完美统一
•客餐厅一体化设计,丈量精致日常的生活氛围感
•双联阳台的突破创新式设计,物理延伸室内光照时长
建筑面积约132m²滨水联排
•入户门庭宽约1.9m,以对称礼序,为浓荫西郊典藏家族门牌
•首层会客空间,南朝超6m面宽,以全景落地窗将庭院绿意引入厅堂
•跨层联动,地下采光井、L型星空露台、前庭后院打造立体共享空间
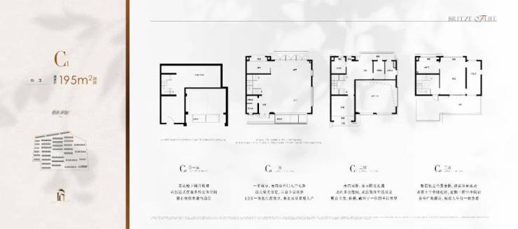
建筑面积约195m²滨水联排
•首层尊享,LDK一体化无界宽厅,南北双享景观入户
•二层预留南向尺度双卧+北向多功能间,聚合社交、休憩于一体的平行世界
•三层整层独立全景套卧,天地无界广角露台,包容人生每一份热爱
建面约139m²精奢上叠
•超9m南向三开面宽,南北通透,面面瞰景
•首层南向卧室,全景飘窗赏园,尊长静心安居
•宽享超9m全景双露台,境现世家空中摘星花园
•宽奢套卧预留大尺度衣帽收纳空间,特为私享生活专属
建面约145m²精奢下叠
•首层LDK一体化动线,U型中厨搭配西式岛台设计
•超9m南向三开,约6m宽奢横厅,一步花园谧境
•预留南侧大面采光井,适配地库空间通风采光
•二层南向双卧+北向X空间,功能完备,满足世家所需
保利物业 高端服务新范式
作为国家首批一级资质物业管理企业,保利物业稳居全国物业行业TOP2、央企TOP1,是物业行业规模和品质的领军者及标杆示范企业。
物业信息来源:中指信息技术研究院主办的“2024中国物业服务百强企业研究成果发布会”、广东省物业管理行业协会公众号、中国保利集团有限公司官方网站
四时雅集 高阶社群服务体系
项目配置“四时雅集”物业服务品牌,通过“闲·情·雅·智”4大维度,将7X24h的管家深度服务、关爱长幼的全龄段知交体验、见微知著的雅致生活情境营建及全景智能化的便捷安全守护,融入“和字系”都市新烟花主义的美好生活刻度。
上海保利·西郊和煦
售楼处预约中心电话:400-000-0460转6999【天眼查认证】
预约来电尊享内部优惠,开发商案场销售一对一热情服务,提前24小时预约,看房不收取任何费用!
Sales Office reservation center: 400-000-0460转6999 Make an appointment to enjoy the internal benefits, the developer's case sales one-to-one warm service, do not charge any fees to see the house!
声明:本文由入驻焦点开放平台的作者撰写,除焦点官方账号外,观点仅代表作者本人,不代表焦点立场。
