众禾嘉苑(售楼处)-首页网站丨众禾嘉苑欢迎您丨众禾嘉苑楼盘详情
扫描到手机,新闻随时看
扫一扫,用手机看文章
更加方便分享给朋友
众禾嘉苑
售楼处电话:400-000-0460转6666
如有问题欢迎来电咨询,来电即可享受买房优惠!
预约来电尊享购房优惠,可预约案场内部销售人员,专业一对一热情服务,让您用专业眼光去买房。
楼盘项目全面介绍,本电话为开发商提供线上售楼处电话,楼盘项目全面介绍(包含楼盘简介,楼盘积分,房价,价格,楼盘地址,户型图,交通规划,备案价,项目配套,楼盘详情,售楼处电话,最新消息,最新详情,周边配套,最新进展等详情咨询)
众禾嘉苑售楼处电话:400-000-0460转6666
嘉定复华园区 嘉闵线地铁口
嘉戬公路站旁全新住宅
加推建面约94-122㎡3房
均价43866元/㎡ 总价约340万起
无需积分 可直接认购
售楼处火热预约中
众禾嘉苑售楼处电话:400-000-0460转6666
项目基础信息
「众禾嘉苑」即2022年二批次土拍地块嘉定区马陆镇嘉定新城JDC10502单元(复华园区)02-01地块,项目由大众以12.4亿元总价竞得,楼板价22364元/㎡,溢价率9.09%。房地联动价4.37万/㎡。

众禾嘉苑售楼处电话:400-000-0460转6666
区位示意图
根据设计方案显示,两块地共计规划8栋14-18F高层住宅,规划住宅套数570套。
众禾嘉苑售楼处电话:400-000-0460转6666
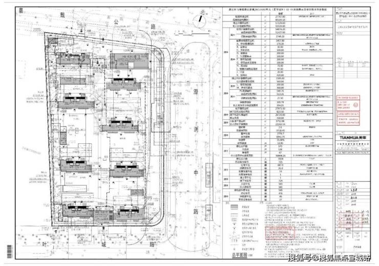
本项目拟建2层配套设施2栋,14层住宅楼1栋,17层住宅楼1栋,18层住宅楼6栋。总建筑总建面85103.1㎡,其中计容建筑面积55534㎡,容积率2.0;共570户。
众禾嘉苑售楼处电话:400-000-0460转6666 总平面图
众禾嘉苑售楼处电话:400-000-0460转6666
技术经济指标图

众禾嘉苑售楼处电话:400-000-0460转6666
效果图
去年11月23日上午,大众房产嘉定复华园区商品房项目开工仪式在工地现场隆重举行。
以“人车分流”为基础
享江南美学理想舒居
众禾嘉苑售楼处电话:400-000-0460转6666
众禾嘉苑项目由8幢14-18层的小高层及1幢2层的邻里中心组成,规划商品房528户,规划车位725个,共有地下二层车位,采用全人车分流的设计。

众禾嘉苑售楼处电话:400-000-0460转6666
众禾嘉苑售楼处电话:400-000-0460转6666
众禾嘉苑采用围合式布局设计,社区四至形成有效的社区边界,创造最大约59米楼间距,户户推窗见景。

众禾嘉苑售楼处电话:400-000-0460转6666
众禾嘉苑采用经典的中轴对称设计手法,社区内以中央景观轴+中央景观花园为核心,规划“一轴、一心、一环、五园”的景观布局,打造了美学会客厅,阳光大草坪,下沉式书吧、环形跑道和五个楼幢景观花园等多个主题景观组团,打造社区人性化、景观功能化、配套全龄化的全维度生态住宅。

众禾嘉苑售楼处电话:400-000-0460转6666
众禾嘉苑充分延续江南民居的传统,采用五进式归家礼序,在社区主入口打造星级酒店感归家体验,整个社区通过“入口礼仪门厅→迎宾文化空间→中央景观花园→漂浮会客厅→景观入户大堂/地下大堂”的五进式院落归家空间,使业主归家路充满仪式感。

众禾嘉苑售楼处电话:400-000-0460转6666
众禾嘉苑主力建面约94-122㎡精装3房,户型以LDKB一体化特色设计,不仅通风、采光俱佳,还更加明亮开放,动线更加合理。
值得一提的是,项目在装修方面臻选国内外知名家装品牌,打造出价格超配的全系精装配置。
众禾嘉苑售楼处电话:400-000-0460转6666 项目推售详情
最新消息:嘉定复华园区 嘉闵线地铁口 嘉戬公路站旁全新住宅【众禾嘉苑】推出528套全部房源,建面约94—122㎡精装3房,均价43866元/㎡,已经开盘,可直接认购。
最新户型图如下:

众禾嘉苑售楼处电话:400-000-0460转6666

众禾嘉苑售楼处电话:400-000-0460转6666
项目周边配套
商业方面:项目大约400米处就可到达嘉乐·东润广场,约1公里处还有百联嘉定购物中心,满足居民日常生活需求。

众禾嘉苑售楼处电话:400-000-0460转6666
学校方面:项目周边大约1公里范围内有嘉定区新成路小学、嘉定区成佳学校,基础教育有保障。
并且项目西侧为教育规划用地,学校规划用地面积约32581㎡,建筑高度不超过24米,总建筑面积约45000㎡,须满足28班完全中学的办学规模要求(完全中学,就是指一所学校含初中部和高中部)。
底图源于上海购房通
众禾嘉苑售楼处电话:400-000-0460转6666

其他配套:项目地块周边小区众多,生活氛围较好,距离嘉定体育中心400米,迎园医院等配套。
众禾嘉苑售楼处电话:400-000-0460转6666
同时,在建的地铁嘉闵线嘉戬公路站就设在附近,建成后,通过嘉闵线往南30分钟可达虹桥枢纽,往北直达苏州太仓。
众禾嘉苑一房一价表
众禾嘉苑
售楼处电话:400-000-0460转6666
如有问题欢迎来电咨询,来电即可享受买房优惠!
预约来电尊享购房优惠,可预约案场内部销售人员,专业一对一热情服务,让您用专业眼光去买房。
声明:本文由入驻焦点开放平台的作者撰写,除焦点官方账号外,观点仅代表作者本人,不代表焦点立场。
