青庐·西湖青庐首页官方网站→青庐售楼处电话→杭州西湖青庐楼盘详情→交房时间→地址→最新房价户型图→小区环境→交房时间→周边配套→售楼处电话
扫描到手机,新闻随时看
扫一扫,用手机看文章
更加方便分享给朋友
西湖青庐售楼处电话:400-000-0460转9999
西湖青庐售楼处电话:400-000-0460转9999
预约来电尊享内部优惠,开发商案场销售一对一热情服务,看房不收取任何费用!
Sales Office Phone: 400-000-0460 ext.9999
Book a phone call to enjoy internal discounts, and the developer will provide one-on-one enthusiastic service for on-site sales. No fees will be charged for viewing the property!

去往杭州植物园的路上,必经玉古路,而在其一侧,最近悄悄建起几幢不高的新楼,看上去颇为现代,灰色调的石材与香槟金的线条搭配,是现在主流的审美风格,内敛且端庄,与边上的兰家湾商业街区“格格不入”。它有一个很“西湖”的名字——青庐。
一墙之隔就是浙大玉泉校区,如下图所示,红色房子就是浙大教学楼,而左侧便是这个楼盘。
该楼盘藏于玉古路西侧一片翠绿掩映之中,即使经常出入景区,都不一定能观察到。记者也只是在小红书上看到有几个豪宅中介在发布房源信息,非常神秘。
西湖边居然还有如此奢华的新盘?记者也从浙江土地网查询到了相关信息,该地块确实是通过招拍挂公开竞得。
资料显示,该地块于2022年2月出让,由杭州腾视实业以2.77亿元摘得,折合楼面价23153元/㎡,容积率1.8。而该楼面价在当年出让的商业地块中,也仅次于湖滨劝业里。用地属性除了商业商务外,还有留用地性质,也就是这块地算是和村里一起合作开发的,有不动产证,产权40年。
从地图上看,该地块占地面积非常小,东至护校河,南至玉泉村,西至光学仪器厂,北至对外经济贸易学院大楼。几乎是藏在景区里,步行至青芝坞3分钟,步行至植物园10分钟不到,可谓背靠着西湖,闹中取静。

如此寸土寸金的地方,居然还盖起了商业大平层。那么它到底会做成什么样的产品?又是什么时候开卖呢?记者也就相关问题咨询了几位豪宅中介。
“青庐预计明年年底全精装修交付,现在看到的外立面全是石材干挂,市面上已经很少见了。精装样板房的设计方案已有,等竣工备案后开始做。目前对外定价在10万元/㎡(含精装修1万元/㎡),还有3套好房源可选。”一位杭城豪宅代理人向记者透露。

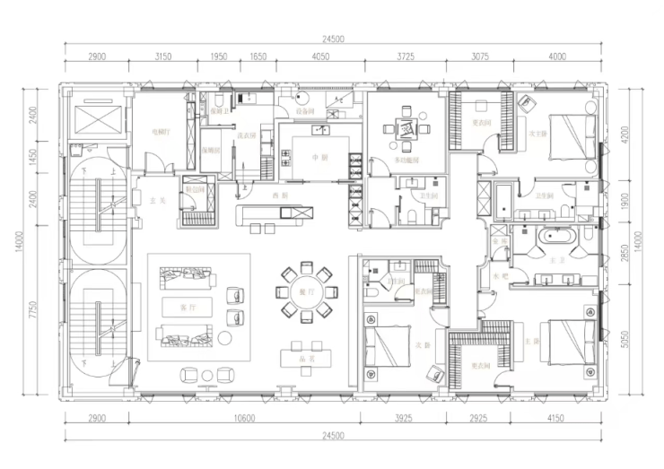
按照该经纪人的说法,该楼盘可售部分清一色定位成350㎡大平层,网上流传的户型图显示,空间被打造成3套房+1功能用房,其余为餐客厅以及家政保姆间,尺度非常阔绰。按照10万元/㎡的均价计算,这些房源都在3000万元以上。

而目前杭州市面上大平层的金字塔顶端产品,也只有钱塘江两岸或市中心的同类产品,能卖到这个价格以上。
此前,钱报也曾报道过,玉泉路1号房产(即蔡元培女儿蔡威廉的故居)以起拍价1.2亿元成交。事实上,西湖边的房子历来受到关注,但大都是历史保护建筑,或者是老宅子,不少需要返修,而像青庐这样全新的现代派建筑,几乎没有,可想而知,不少隐贵已经盯上它了。
“我确实已经带几个客户来看过了,他们对地段和产品都很心动。老板也很低调,并没打算高调做宣传。”另一位长期从事豪宅销售的经纪人坦言,除去部分房源是酒店外,剩余的三幢只有十几套房源,基本不愁卖。
西湖青庐售楼处电话:400-000-0460转9999
预约来电尊享内部优惠,开发商案场销售一对一热情服务,看房不收取任何费用!
Sales Office Phone: 400-000-0460 ext.9999
Book a phone call to enjoy internal discounts, and the developer will provide one-on-one enthusiastic service for on-site sales. No fees will be charged for viewing the property!
声明:本文由入驻焦点开放平台的作者撰写,除焦点官方账号外,观点仅代表作者本人,不代表焦点立场。
